Details

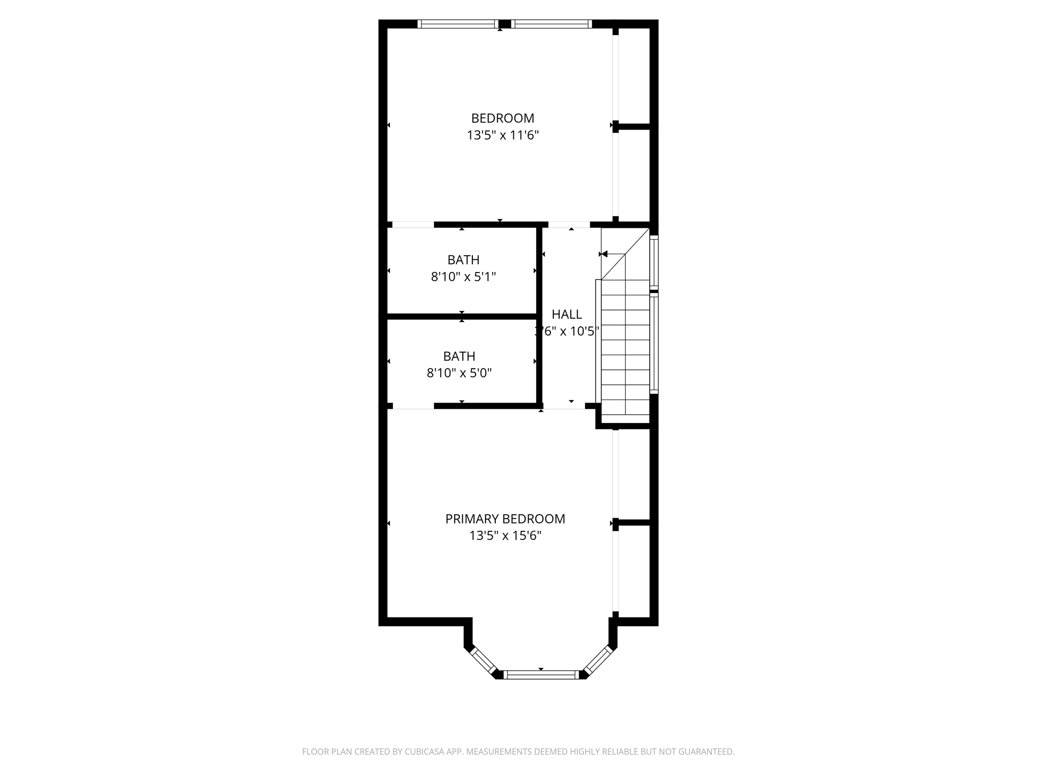
Surprisingly GREAT Central Location beautifully tucked off the main road for remarkably QUIET surroundings in this Willow Run Townhouses Community (only 8 homes total). Main Level has open floor plan with Great Room design (Kitchen/Dining/Living Room), Gas Fireplace, Powder Room, Utility Closet, and fully-fenced Backyard with spacious Entertainment Deck. Upper Level has Primary AND Secondary Bedroom Suites with their own bathrooms. Updated Kitchen with NEW Gas Range & Microwave (never been used). Attached 1-Car Garage, plus assigned/deeded Parking Space #6. Walkable to parks, grocery, restaurants, shopping, transit, several amenities. HOA covers water/sewer/garbage/common area maintenance; Resale Cert/HOA Docs are available. Welcome Home!

  • $435,000
  • 2 Bedrooms
  • 2.5 Bathrooms
  • 1,097 Sq/ft
  • Lot 5663 Acres
  • 2 Parking Spots
  • Built in 1999
  • MLS: 2456382

Images

Floor Plans